Retrouvez tous mes projets et réalisations d’architecture dans le Morbihan.
Découvrez le projet LC à Ploemel, réalisé en collaboration avec le maître d’œuvre Noël Guhur. Ce projet a abouti à la création des plans pour la construction d’une maison dans le Morbihan, alliant expertise et design pour répondre aux besoins du client.
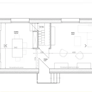
Découvrez comment MY Concept a transformé une ancienne école de Baden en un loft moderne. Ce projet d’architecture en Morbihan a créé des espaces de vie ouverts avec une grande hauteur sous plafond, en collaboration avec VMB Habitat. Un design unique qui allie fonctionnalité et esthétisme.
Découvrez la rénovation d’une maison familiale à Saint-Philibert, réalisée par MY Concept en collaboration avec Noël Guhur. Ce projet a inclus la démolition partielle, la reconstruction, l’extension et l’ajout d’une maison d’amis, créant ainsi un espace moderne et fonctionnel.
Découvrez la construction d’une maison à Hennebont, conçue par MY Concept en partenariat avec VMB Habitat. Ce projet optimise l’espace pour créer un intérieur lumineux et fonctionnel, alliant confort et design moderne.
Découvrez la transformation d’une maison néo-bretonne à Crac’h en résidence secondaire. MY Concept a aménagé le garage en suite parentale, optimisé les espaces de vie et créé une terrasse en L. Ce projet a été réalisé en collaboration avec le maître d’œuvre Noël Guhur, alliant confort et modernité.
Découvrez l’extension d’une maison à Brandivy, réalisée par MY Concept. Ce projet a ajouté deux chambres, une salle de bains et un espace lecture en mezzanine au-dessus du garage existant. L’extension s’intègre parfaitement à l’architecture d’origine, offrant plus de confort et de fonctionnalité tout en respectant le style initial de la maison.
Découvrez la transformation d’une maison à Grand Champ. Le rez-de-chaussée a été entièrement rénové, avec une cuisine ouverte sur le séjour et la création d’une suite parentale. Ce projet a été modernisé pour répondre aux besoins d’une nouvelle famille, offrant ainsi un espace de vie fonctionnel et agréable.
Découvrez la rénovation d’un appartement à Rennes par MY Concept. L’objectif était d’améliorer l’isolation, de moderniser les installations et d’optimiser l’espace. Le résultat est un intérieur plus fonctionnel, agréable et adapté aux besoins modernes.
Découvrez la construction d’une maison à Locqueltas, réalisée par MY Concept. Ce projet offre des volumes spacieux, une belle exposition sud et une vue dégagée sur le jardin. Un espace de vie lumineux et agréable, conçu pour maximiser le confort et l’harmonie avec son environnement.
Découvrez la transformation d’anciens bureaux à Quimperlé, réalisée par MY Concept. L’espace a été repensé pour devenir un lieu de travail moderne et fonctionnel, favorisant l’échange et le coworking. Un projet pensé pour répondre aux besoins d’une collaboration optimale.
Découvrez la construction d’une double maison à Plouharnel, conçue par MY Concept pour la location saisonnière. Chaque logement de 75 m² offre une vue imprenable sur la mer, alliant confort et espace pour un séjour agréable.
Découvrez la transformation d’un garage en studio à Ploemel par MY Concept. Une surélévation a été ajoutée pour optimiser l’espace et créer un logement fonctionnel, parfait pour répondre aux besoins modernes.
Découvrez la transformation d’une longère à Plescop en deux logements distincts, réalisée par MY Concept. Ce projet combine le charme de l’ancien avec des éléments contemporains, créant des espaces fonctionnels et modernes tout en préservant l’authenticité du lieu.
Découvrez la rénovation d’une maison à Vannes, transformée en un logement moderne et fonctionnel. La nouvelle distribution des espaces optimise la lumière naturelle et le confort, créant un environnement agréable et pratique.
Découvrez la rénovation d’une longère à Inguiniel, réalisée par MY Concept. Le rez-de-chaussée a été transformé en un espace de vie moderne, tandis qu’à l’étage, trois chambres, une suite parentale, une salle de bains, des WC et une mezzanine ont été ajoutés. De nouvelles ouvertures ont été créées pour améliorer la luminosité et apporter plus de confort à l’ensemble de la maison.